The epitome of luxury
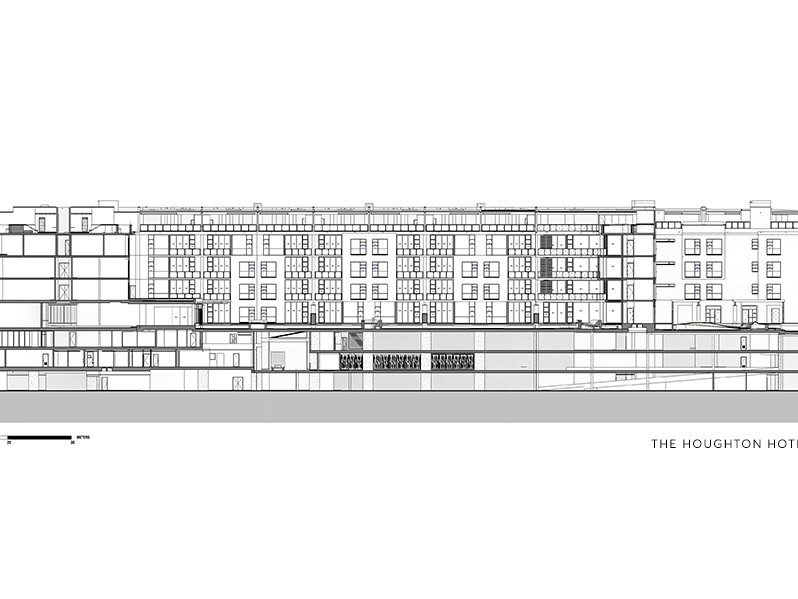
Situated in the affluent suburb of Houghton, in a luxury residential estate, The Houghton Hotel was designed to incorporate all the services you would expect from a 5-star hotel, including conference facilities, a spa, gym, restaurants and coffee shops.
High precision design and sophisticated materials such as concrete, steel and glass blend with its Highveld heritage of natural elements and soft sweeping lines.
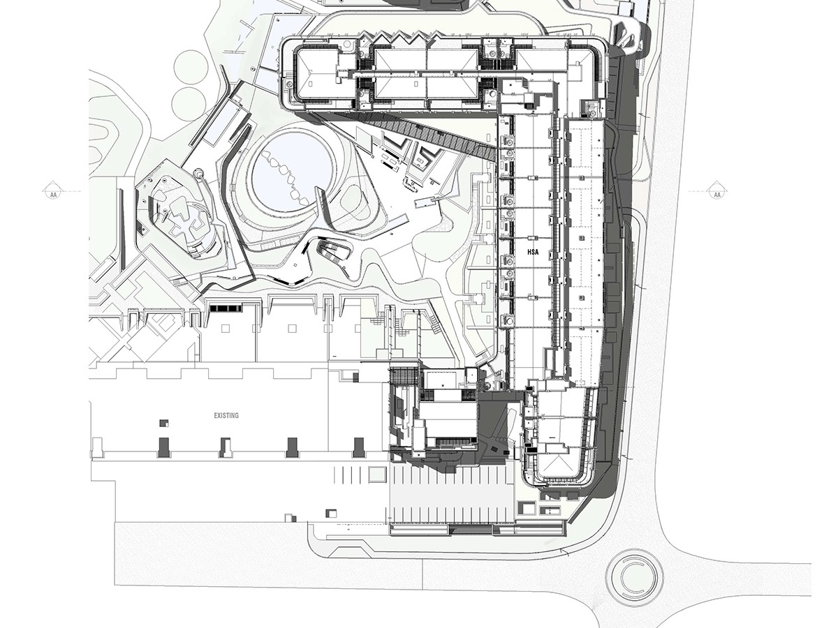
This 180-room hotel forms the knuckle of the development flowing into two curved wings which house serviced apartments on one end and residential apartments on the other. The architecture features undulating curves that wrap around the environment creating a central outdoor piazza that pulls the golf course greens and landscaped gardens up to the threshold of the building, which floats effortlessly above. Embracing nature as its hero, the architectural design required parking to be relocated underground. This made it possible to retain the natural landscapes and focus on the views.
The underground storm river running through the site was central to the core design concept of fluidity. It has been reinterpreted as water features throughout the development and provides a sustainable eco-friendly water source for the landscaped gardens and golf course. Merging indoors and outdoors, man-made and nature, Highveld and lush greens, The Houghton reflects the style and luxury of its wealthy surroundings. Its masterstroke lies in embracing the environment inside and out, making it core to all design considerations.
| Appointment | 2012 |
| Developer | ASVID Holdings |
| Completed | 2019 |
| Project Manager | Echo Project Managers |
| Quantity Surveyor | Tricolt |
| Structural Engineer | MVW Consulting Engineers |
| Electrical Engineer | Aftek Consulting Engineers |
| Mechanical Engineer | Adaptive Resource Engineers |
| Wet Services | CKR Consulting Engineers |
| Landscape Architect | GREENinc |
| Interior Design | DSGN |
| Photography | Adam Letch Photography / Image of main pool and Spa garden pool: Malcolm Coulson Photography |























